



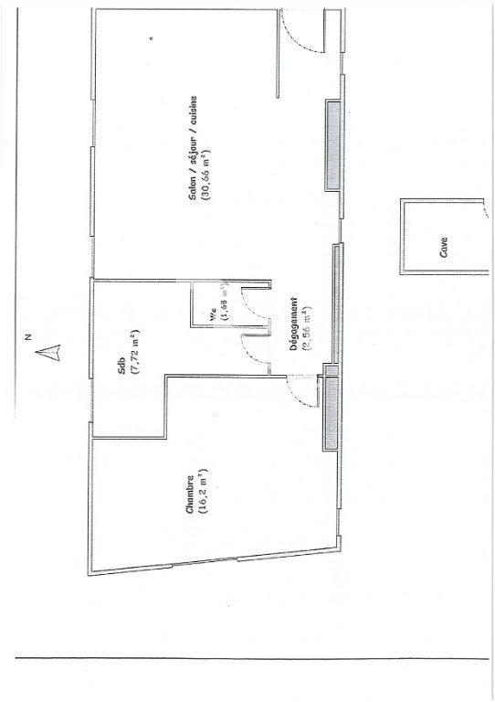
Bel appartement T2 rénové de 58,88 m² loi Carrez, situé à LOSNE, au 2ème étage d'un ensemble en copropriété, L'entrée dessert un séjour lumineux de 32 m² avec cuisine ouverte, pièce de vie traversante qui invite à la détente et aux repas conviviaux. La chambre de 20 m² propose un espace nuit confortable. Un couloir distribue la salle de bains et des WC séparés pour plus de confort au quotidien. Le bien bénéficie d'un accès pratique par une cour commune entre deux bâtiments, un emplacement de parking privatif et une cave. Chauffage gaz à condensation (5 ans)charges copropriété 249 € environ par trimestre, taxe foncière 394 €, pas de procédure en cours. Idéal pour un premier achat ou investissement locatif. Prix : 70 000 € (honoraires TTC 7 000 € à la charge du vendeur). Mandat simple n°16344. Pour découvrir ce T2, sa cave et son emplacement de parking, contactez Natalie BAUDOT afin d'organiser une visite
Les informations sur les risques auxquels ce bien est exposé sont disponibles sur le site Géorisques :